Строеж - къде, как, колко? Тема за взаимопомощ 31

  • 99 790
  • 823
  •   1
Отговори
# 495
  • Пловдив
  • Мнения: 3 274
Любознателна,по същата причина се отказах от терасата.Бях споменавала,че Лондонската ни къща също си няма и си простирам точно белите чаршафи на двора 😁.Освен това точно зад гаража в 3те метра отстояние от съседите прането ще е буквално невидимо.
Стълбището ни е 220 на 255,компактно също Simple SmileИ смятам точно стирките и прахосмукачката да са там.
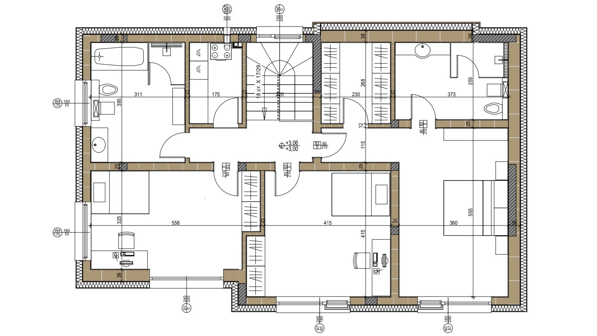
Ще го пусна този план най-накрая,да видим какво ще кажете.
И да дам пояснения-гараж на улична регулация,с топла връзка към къщата и врата в задната си част за мъжка работилница.
Държа на отделена кухня с голяма портална врата,предполагам стъклена тип модерен винкел.Игнорирайте мивки и котлони на острова.Искам го гол за работна площ-точилки ще мятам  Simple Smile
Другото ми условие беше верандата да е странично.Обожавам светли стаи и не искам да затъмнявам първият етаж,особено холотрапезарията.
Промените,които искам да направя са да премахна южната врата на хола за достъп навън.
Да премахна изцяло западните прозорци на трапезарията и тези на горната детска.Да направя изход за верандата от южната част на трапезарията и врата от кухнята навън към къта за готвене.Да сложа прозорци на баните ,които нямат.Мислех за по-голям дрешник горе,но ако го разширя метър не виждам какво ще спечеля.По-скоро дължина му трябва.
И градинска барака за натурии ще има,не смятам да я вкарвам в полезната отопляема площ.Поради тази причина и плочата на гаража ще е на фуга,за да го отделим в качеството си на термомост.
Ниско енергийна къща с южно ориентирата фасада с централна климатизация и рекуперация.




Последна редакция: чт, 21 юни 2018, 12:41 от nelina_london

# 496
  • густо майна Филибето
  • Мнения: 8 648
Впечатлена съм от размерите на кухнята, супер е! И много е хитро от там да е вратата към килера под стълбището!
Не разбрах как ще се излиза от южната страна на трапезарията, като външната трапезария е от запад. Но наистина, ако се излиза от там, вратата от хола става излишна.
 А от запад има ли как да засенчвате летния кът? Само покрив може да не е достатъчен, защото слънцето следобед е ниско, а семейството сяда навън обикновено надвечер. Иначе и идеята за изнасяне на верандата встрани също много ми харесва.
За да излизаш от кухнята ще ти трябват още сантиметри на тази чупка, защото там има колона, а и да е завъртяна май пак не стига място. Аз бих помислила за намаляне на кухнята с 40-50см от северната страна, за да я увелича толкова от западната, така че да мога да излизам от чупката.( да не се добавя още квадратура, не за друго) Така обаче банята горе и мокрото също ще се променят.
 И моето стълбище е подобно, но тези клинове на завоя развалят малко ритъма на качването. Аз ползвах една програма (и знанията си от техникума), за да проектирам стълбището, защото то е дървено. Така почти всички стъпала са с еднаква ширина там, където се стъпва. Правих шаблони и дърводелец ми направи отделните части, ние си го сглобихме. Но и то не е завършено, показвам на чертеж как изглежда. Рамото му е 85см, за 276см височина:
Скрит текст:

Голям ферман стана, но реших да онагледя нескопосано какво мисля за кухнята. Бих оставила и прозорец откъм трапезарията, да надничам какво къкри вън на котлона, докато си стоя на хладно на климатика. Simple Smile
Скрит текст:

От опит казвам, че при такава близост с вътрешната кухня, навън ти трябва малко място. Котлон, плот за работа и малка мивка.

Последна редакция: чт, 21 юни 2018, 14:49 от Ljuboznatelna

# 497
  • Бургас
  • Мнения: 1 547
Много хубав план. Хареса ми чупката на стената между двете детски стаи.
 
Аз също смятам, че вратата на хола да се затвори, защото си представям там да е мястото за елхата. Много харесвам голяма стояща елха на пода.

По отношение на кухнята и външния кът за готвене в моя план съм предвидила между горния ред и долния ред шкафове прозорец с плъзгащи крила, за да мога да слагам отвън навътре или обратно, а не да обикалям.

На верандата съм предвидила зидано барбекю, за да мога понякога и да го ползвал като камина през по-хладни дни. Ще сложа махащи се стени-найлони, за да седя навън. Тази последна идея още я обмислям.

# 498
  • sofia
  • Мнения: 9 371
Аз си простирам на терасата, която е покрита. Това да го мисля прането дали няма да го навали ми е супер натоварващо. Та, за постоянно ползващ се простор е направо задължително да е под навес.

# 499
  • Пловдив
  • Мнения: 3 274
Любознателна страхотна си! Flowers Hibiscus
Много е хитро твоето стълбище.И мен ме притесняваха тези завити стъпала,но срещата ми с архитекта се състоя в жилище със същите стъпала.Качих се и ми се видяха много удобни и на мен и на съпругът ми,чийто крак носи достолепният 45ти номер.А и след английските стълбища,може би дори и по-неудобните ми се струват прекрасни.
За западната веранда сме помислили.Това обозначено като правоъгълник е зид и над него ще има метални пръчки, по които пълзи дива лоза.И  това видях на живо и ме спечели.
Също забелязах проблема с колоната на кухненският ъгъл и реших,че решението е да намаля малко трапезарията ,за да стане по-голяма чупка,за врата и съответно да намаля малко долната и съответно горната спалня с 30тина см.
И на мен ми е прекалено голям кътът за готвене отвън.Пропуснах да кажа,че цялата къща и верандата  ще са повдигнати на 2 стъпала и ще помисля доста над предложението за северен външен кът.
Bar B Q,в Лондонската ни къща подавам през прозореца за масата отвън и е удобно.В моят случай не бих си причинила западен прозорец.
Това с найлонените стени и мен ме беше осенило ,но най вече да не ми се мърси много верандата и съответно мебелите на нея.Май-по скоро се отказах.
Веси,незнам дали ще повярваш,че успявам да се справям вече 11 години с английско време и външен простор.И не ми пречи,а с българското време ще се родя Simple Smile

# 500
  • Пловдив
  • Мнения: 3 274
Днес ми е напрегнато..Почивката свърши и стягам куфарите пак Confused
И незнам как пропуснах и предложението на Любознателназа западно прозорче.Хич не го долюбвам пустият му пек,но и за това ще помисля.
И маршрутът на прането за отвън чертая...
Мъжът ми не иска да участва в умуването.Доверил се е на русата ми глава или по-скоро на факта,че архитектът ще възпре непрактичните  решения,породени от интериорните ми напъни.

# 501
  • Варна - Монреал-Едмънтън
  • Мнения: 178
nelina_london хареса ми проекта.
Предлагам да се помисли за двойна мивка в банята на втория етаж (ако имате две деца).
Гардеробите са много добра идея. Така е и при нас в Северна Америка. По скоро се водят вградени и има възможност за избор на различни врати и организация.

# 502
  • Пловдив
  • Мнения: 3 274
аrogance,не се бях сетила,че ще стават по едно и също време сутрин.Но дали ще са заедно в банята?Нали всеки ще посети и тоалетната?
Първоначално мислих всяка стая да е с баня.В последствие взех да въртя тънки сметки как докато са малки няма да ги ползват(в момента са на 2 и 4 години).Помислих си и да ги чистя ..и ги пожертвах за сметка на една по-голяма баня с вана,която се надявам да се ползва активно при наличието на слънчев колектор.
Пералното ми се вижда малко ню ню-пералня и сушилня,рекуператор и централен бойлер...Вярно,че там няма да си пия кафето,нито ще гладя,но дали се събира всичко...другата седмица ще получа информация.

# 503
  • Варна - Монреал-Едмънтън
  • Мнения: 178
аrogance,не се бях сетила,че ще стават по едно и също време сутрин.Но дали ще са заедно в банята?Нали всеки ще посети и тоалетната?
Първоначално мислих всяка стая да е с баня.В последствие взех да въртя тънки сметки как докато са малки няма да ги ползват(в момента са на 2 и 4 години).Помислих си и да ги чистя ..и ги пожертвах за сметка на една по-голяма баня с вана,която се надявам да се ползва активно при наличието на слънчев колектор.


Аз имам две момичета на 3 и 8 години. Сутрин си мият зъбите заедно и си приказват.
Планувам такава баня::

# 504
  • густо майна Филибето
  • Мнения: 8 648
предложението на Любознателназа западно прозорче.Хич не го долюбвам пустият му пек,но и за това ще помисля.


Ако ти е с покрив външния кът, слънцето няма да стигне до прозореца.
Спалнята на сина ми е западна, и на 3м от прозорците има насадена кайсия. Тя е вече 10 годишна и огромна, сянката там е пълна. Дори се налага в сумрачни дни да светва лампа. Но пък зимата е много приятно, когато лъчите влязат в стаята.
Приятен път и ползотворно проектиране! Simple Smile Всичко си е идеално в проекта, аз не виждам кое може да се намаля, независимо, че същите неща , без перално и едната горна баня, съм ги събрала на 140кв.м. Joy


Аз имам две момичета на 3 и 8 години. Сутрин си мият зъбите заедно и си приказват.

Много сладко Heart
Предполагам , че има начин едната да не нахлуе в банята, докато другата е вътре, но може ли да ми обясниш как работят ключалките? (извинявам се за невежеството)

# 505
  • Перник
  • Мнения: 5 087
По въпроса за терасите - аз смятам, че за къща на 1 етаж нямат смисъл, но при нас се наложи да направим пред френските прозорци - заради прословутата ни денивелация. Аз си я представях по-малка въпросната тераса, но тя се оказа достатъчно голяма за да се сложи на нея маса и столове Simple Smile Западна е и все още не е засенчена по никакъв начин. Плановете са лоза, поликарбонат, тента, навес (покрив). Аз обичам да ми е слънчево и просторно и съм за лоза или тента, мъжът ми естествено предпочита навес Grinning
Простирам на двора, но само, когато съм си вкъщи, иначе - имам простор в пералното.

# 506
  • Sofia
  • Мнения: 3
Здравейте! Моля да ми препоръчате майстори от които сте останали доволни за шпакловка и латекс на стени и полагане на гипс картони на тавани. Област Враца, Монтана или околните села в близост до село Михайлово. Благодаря!

# 507
  • Варна - Монреал-Едмънтън
  • Мнения: 178



Аз имам две момичета на 3 и 8 години. Сутрин си мият зъбите заедно и си приказват.

Много сладко Heart
Предполагам , че има начин едната да не нахлуе в банята, докато другата е вътре, но може ли да ми обясниш как работят ключалките? (извинявам се за невежеството)

Не разбрах въпроса.
Ние сутрин все не ни стига времето и затова сме всички по едно и също време в банята. (Аз си имам моя Simple Smile)
В Северна Америка даже и за баня за родителите е много желателно две мивки.  Всеки си има неговата страна да се реди неща Simple Smile

# 508
  • au bout du monde
  • Мнения: 5 433
Здравейте, нуждая се от съвет  Излезна ни първия чертеж. Спални 15кв добре ли са? И трите са различна големина с мн малка разлика. Главната спалня е 15,70, другите 16,45 и 15,15. Баните са 4,42. Холо кухнята 40.62. Дали ще е добре да направим перално до гаража? До там ще се стига по стълби от коридора. В самата къща на етажа не виждам иначе място.

# 509
  • густо майна Филибето
  • Мнения: 8 648
За мен е идеално. Има значение и къде е вратата и прозореца, за да е максимално функционална.

Общи условия

Активация на акаунт