Обсъждане на имотни обяви-24

  • 39 494
  • 753
  •   1
Отговори
# 60
  • Мнения: 13 187
Слаши, кое да я обиди, че е намерила 3 стаен апартамент с два санитарни възела, балкони за 84 хиляди евра? Колко върви сега такъв апартамент? Рискувал е и те вече са напред от това, че са го взели! Догодина това жилище ще е 120 к! Разбрахме, че не ви харесва, то не е и задължително, но оставете жената да се зарадва.

# 61
  • Мнения: 128
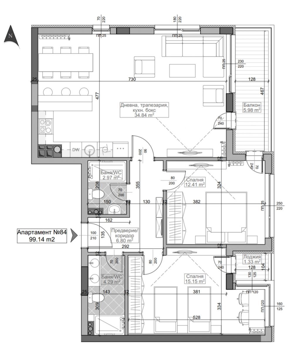
Здравейте! Това разпределение мноог ми харесва на мен. Направо се влюбих, ако трябва да бъда точна. В едната баня ще сложим пералня със сушилня и малко рафтове, това горе-долу ще е различното, а в другата няма да има две мивки. Не виждам смисъл от две мивки. Вие виждате ли нещо друго, което аз не виждам и като цяло как ви се струва? В преговори сме със строителя, стискайте палци да мине всичко лесно.

# 62
  • София
  • Мнения: 12 428
Съвети няма да дам, нека по-опитните се изкажат, но и на мен този апартамент страшно много ми харесва.
Успех със сделката.

# 63
  • София
  • Мнения: 3 243
Аз бих жертвала част от гардероба в спалнята, за да отворя врата директно от нея към банята, но съм в минималистичен период и не ми трябва много площ за вещи и дрехи. Не бих смалявала другата баня с пералня/сушилня, а ще си я оставя, както е, за да се ползва от другата спалня плюс гостите.

Категорично не виждам смисъл от две мивки, не разбирам защо някои толкова държат на това.

Като цяло и на мен ми харесва. Успех с покупката!

# 64
  • София
  • Мнения: 858
И на мен много ми харесва. Единственото, което би било добре да се добави, е малък килер за прахосмукачка, моп и други дребни неща, които не искаш да са ти пред очите. Може би бихте могли да направите нещо като шкаф в по-голямата баня, на мястото на втората мивка.
Успех в преговорите!

# 65
  • Мнения: 11 460
Няма женска гледна точка и мъжка гледна точка, ако говорим за рационални аргументи. А рационалните аргументи са, че жилището на Милена е с много прилично разпределение и размери на помещенията, цената също е добра. Че има определени минуси - има си, не е идеалното, ама вече писах - и с много пари идеално трудно се намира. Рационални аргументи са също така - колко пари мога да дам за жилище, колко ще ми струва отоплението и мога ли да го плащам, ремонт, поддръжка и т.н. на едно жилище, с кола или с ГТ се придвижвам обикновено, имам ли нужда от голям парк наблизо (аз лично нямам такава нужда, но преобладаващата част от пишещите имат, защото такъв е начинът им на живот), ей такива неща.

Ирационалните, емоционалните аргументи са свързани с това кой какво харесва - аз, ти, той, някой харесва висок етаж, друг харесва нисък етаж, но затъмнен от дървета, гледката, старите сгради дали са "кимизарници" или пепеляшки, които ще грейнат след ремонт, онзи лофт харесва ли ми или не ми харесва (в това няма нищо рационално), ей такива неща.

Добре е последната скица, отново добро разпределение.

# 66
  • София
  • Мнения: 4 668
Здравейте, какво мислите за апартамент 1А /крайния в ляво/
http://deadesignbg.com/%d0%b5%d1%82%d0%b0%d0%b6-1/
1 ви етаж над гаражи, входа на сградата, граничещ с асансьор и трафопост, 2 от 3те стаи са чист 100% север, а южната има тясно прозорче към терасата?
Без пари да ми го дадат няма да го взема това.
За същата цена на квадрат има свободни по етажите, например 8.

Бихте могли да го подмените с някой друг свободен, а дори и 2 апартамента, един до друг.
Но, предполагам, имате изрично основание да си изберете само този (страх ви е от асансьори, не вървите по стълби и обичате хладничко)

Ако си слагате храната по пода ще минете и без хладилник. Температурите ще са 2-5 градуса.

Последна редакция: сб, 28 авг 2021, 17:33 от Танграта

# 67
  • Мнения: 11 345
Аз може би не гледам правилния апартамент, но ми се струва, че този има 3 изложения, не е само север.

Вторият, постнат от vladislava, и на мен ми харесва, само малко съм скептична, че на ширина 477 могат да се съберат п-образна кухня, с бар столове и маса за хранене. Може би пак са се изсилили малко с картинката.. а може и да може де, трябва да се сметне.

# 68
  • Мнения: 1 930
Южното прозорче е 170 см-80 см прозорец и 90 см врата. На западната стена холът има 3.50 метра прозорци - един единичен 50 см с височина 180 см и един троен 80+107+107=295 см пак с височина 180 см. Този малкия е на кухнята-много се оплакват,че търсят такова.Според мен прозорци са абсолютно достатъчни, все пак трябва и някоя стена да има да си окачиш картина.

# 69
  • Мнения: 738
За апартамента на Милена- тя питаше за мнение за апартамента. Всеки има право да изкаже мнението си на база на опит и др. Много зависи и колко хора ще го обитават и на каква възраст, защото ако децата са големи и ще заминават да учат някъде, значи апартаментът е ок. Но, ако децата са малки и в този апартамент ще трябва да отраснат, ще е много тясно и некомфортно.
В момента се занимавам непрофесионално с преобразуването на стар 2-стаен в тристаен. Начертала съм го в мащаб, също и мебелите, които ги местя и търся най-адекватното разпределение. Та, в този мой проект холотрапезарията е 22 м2. Кухнята е на друго място. Та, много е трудно да се направи комфортно едно малко жилище.

Вторият апартамент много ми харесва.

# 70
  • Мнения: 13 187
Гого, само вкарваш драма. Никой не е казал, че апартаментът е ТОП, никой не я е и лъгал Милена, че има най-хубавия апартамент в Сф.

За втория апартамент да поставя въпрос. Нашият е с възможност в едната баня да се сложи пералня и сушилня, да, когато го гледахме и аз така си го представях, но сега мисля, че ще шуми на съседите, как мислите? Иначе и на мен ми допада. И на него едната спалня е колкото спалните в апартамента на Милена, но всички много го харесахте.

# 71
  • Мнения: 1 088
Това жилище ми допада до там, че са само 6 апартамента в сградата, но ми е странно,че няма поне тоалетна на долното ниво. Също така не ми излиза квадратурата
https://www.imoti.net/bg/obiava/prodava--v-stroej/sofia/bojana/t … iyQ4zC&page=1
Аз да върна малко назад, че тия Боянските ги игнорирахме тотално.
Сградата изглежда супер, а това че са малко на брой и големи апартаменти и на мен ми харесва.
Съдейки по визуализацията в Витоша на заден план, само на мен ло ми изглежда, чв в тая сграда всички жилища без изключение са със северно изложение?? Имат и по някое прозорче и тераска на изток, колкото да изпълнят нормата по ЗУТ,  но за всякакви практически цели си гледат на север. Гледката към София може би също не е лоша, ама да имаш планината зад гърба си и да нямаш прозорец дето гледа натам е малко куцо.
Иначе като цена за това, което се предлага според мен е супер.

# 72
  • Мнения: 13 187
Ако в Бояна са строили със северно изложение и няма гледка към Витоша си е престъпление.

# 73
  • Мнения: 11 345
По принцип пералня където и да се сложи си шуми на съседите. Ако не я пускаш след 10 или айде 11 не мисля, че е проблем.

# 74
  • Мнения: 1 088
Ако в Бояна са строили със северно изложение и няма гледка към Витоша си е престъпление.
Ами погледни линка и си кажи мнението. И аз не съм сигурен в това, но така ми изглежда... А пък и на мен ми се вижда страшно разхищение на локация.

Общи условия

Активация на акаунт