Q&A
Обобщени въпроси и отговори от темата *
Как да изолирам шума от пералнята и сушилнята в кухнята?
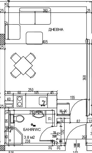
Как мога ефективно да пренаредя мебелите в кухнята си?
Как да избера подходящ материал за кухненски плот?
* Предложените въпроси и отговори се генерират машинно от автоматизиран езиков модел на база потребителските мнения в темата. Генерираното съдържание може да е непълно, неактуално, подвеждащо или неподходящо. Вашите оценки спомагат за подобряване на модела и неговото усъвършенстване.
-
Как да изолирам шума от пералнята и сушилнята в кухнята?
-
Как мога ефективно да пренаредя мебелите в кухнята си?
За да се справите с пренареждането на мебели в кухня, може да използвате професионален дизайнер, който да ви помогне с оптималното разпределение на мебелите. Освен това консултирането с мебелист или фирма за изработка по поръчка може да ви предостави ценни съвети и решения за оптимално разпределение на мебелите в кухнята. За да се справите с разположението на мебели в кухня, препоръчваме ви да се консултирате с професионален дизайнер или мебелист. Те могат да предложат оптимални решения за разпределението на мебелите, включително идеи за подходящо поставяне на пералня и сушилня и ефективно използване на пространството.
-
Как да избера подходящ материал за кухненски плот?
-
Как да се справя с проблемите при избора на материали за кухнята?
-
Какви са предимствата на матовите вратички за кухня?






