Обсъждане на имотни обяви-16

  • 36 200
  • 729
  •   1
Отговори
# 330
  • Somewhere far away
  • Мнения: 6 109
https://www.imot.bg/pcgi/imot.cgi?act=5&adv=1d159775052831558 - Интересна цена за панел... въпреки обзавеждането. Диванът е изключително нефункционален.
(макар че колко слънце има на първи етаж)
От личен опит- много. зависи разбира се от изложението. Аз съм на първи етаж от години, слънцето пече от 10 сутринта до 8 вечерта през лятото.

# 331
  • София
  • Мнения: 8 637
Сигурно зависи от локацията и разположението на апртамента, предполагам. На баба ми апартамента (изложение изток-запад) е на първи етаж, с дървета край блока и винаги е бил доста по-тъмен от нашия на втори етаж (но пък и по-прохладен лятото).

# 332
  • Мнения: 11 513
Не мисля, ще точно кръстовището трябва да ви плаши. Може да е по-шумно, но за сметка на това имате простор и не живеете цял живот в сянка.

Освен трафика по Сливница, не забравяй и трамвая по Константин Величков/Скопие.
+1 за проверка на строежа, ако те интересува, доста дълго го строят.

# 333
  • Мнения: 2 359
Не мисля, ще точно кръстовището трябва да ви плаши. Може да е по-шумно, но за сметка на това имате простор и не живеете цял живот в сянка.

Освен трафика по Сливница, не забравяй и трамвая по Константин Величков/Скопие.
+1 за проверка на строежа, ако те интересува, доста дълго го строят.

В какъв смисъл да го забравя? Да минава трамвай покрай вас според мен е предимство.

# 334
  • Мнения: 11 513
Откъм транспортна свързаност е предимство, откъм допълнителен и то специфичен скърцаш звук е недостатък. Наистина не е еднозначно.

# 335
  • Мнения: 2 359
Откъм транспортна свързаност е предимство, откъм допълнителен и то специфичен скърцаш звук е недостатък. Наистина не е еднозначно.

Simple Smile окей

# 336
  • Мнения: X
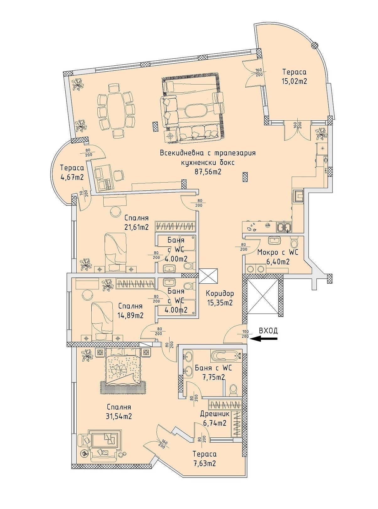
Това дали го виждате? На мен на пръв поглед ми хареса:

https://www.facebook.com/%D0%90%D0%BB%D0%B5%D0%BA%D1%81-%D0%A2%D … /169307604719944/
Страхтен е. Три хубави спални със собствени бани плюс още една обединена с мокро помещение. Дневната също е просторна и страхотна, а ако случайно и това е комплекса си е направо много добро за цената си предложение. .

Последна редакция: чт, 20 авг 2020, 02:23 от Анонимен

# 337
  • Мнения: 2 359
Ако е в комплекс - лошо.

# 338
  • София
  • Мнения: 1 303
https://trafficnews.bg/bulgaria/biala-nespretnata-kashturka-kriv … ovarshena-138978/
Ето тук можете да прочетете за историята на въпросната сграда...

# 339
  • Мнения: 1
Здравейте момичета,с мъжа ми спешно търсим под наем помещение за автосервиз в района на София с възможност за  слагане на подемник- ние си имаме- до 600 лв.Ще бъда много благодарна ако някой знае нещо да пише!Благодаря предварително!

# 340
  • Мнения: 10 278
Точно това щях да напиша. Тази сграда е крива. Гледахме я преди година, година и нещо и с просто око се виждаше колко е изкривена. Снимките са реални. Сградата е опасна. В никакъв случай не трябва да получи акт 16. Не се знае още колко подводни камъни има. Дано не стане беля, защото не е някой малък 5-етажен блок. Може би към 14-15 етажа са. Предвид историята на сградата, аз не бих купила и апартамент около блока.

# 341
  • Мнения: 11 513
Това ЕПК си е баш на ъгъл на кръстовището, дели я една ъглова малка триъгълна градинка от булевардите. Отзад от юг има стари кооперации. Залепено е на калкан с други ЕПК-та, строени 1988-1990 г., някои от секциите ги довършваха и няколко години по-късно. Знам, защото не тази секция, а съседната мисля, я продаваха на груб строеж с лихвоточки есента на 1989 г., октомври някъде беше. Груб строеж в смисъл само бетонът, нищо повече, ни дограми, нито нищо друго.

# 342
  • Мнения: X
Това дали го виждате? На мен на пръв поглед ми хареса:

https://www.facebook.com/%D0%90%D0%BB%D0%B5%D0%BA%D1%81-%D0%A2%D … /169307604719944/
Страхтен е. Три хубави спални с три собствени бани плюс още една обединена с мокро помещение. Дневната също е просторна и страхотна, а ако случайно и това е комплекса си е направо много добро за цената си предложение. .

Апартаментите в този комплекс са с много хубаво разпределение, но самият комплекс е зле и изглежда призрачен. В гаражите имаше течове. Каква му е цената на този, че не успях да отворя обявата?

# 343
  • София
  • Мнения: 10 825
Това дали го виждате? На мен на пръв поглед ми хареса:

https://www.facebook.com/%D0%90%D0%BB%D0%B5%D0%BA%D1%81-%D0%A2%D … /169307604719944/
Страхтен е. Три хубави спални с три собствени бани плюс още една обединена с мокро помещение. Дневната също е просторна и страхотна, а ако случайно и това е комплекса си е направо много добро за цената си предложение. .

Апартаментите в този комплекс са с много хубаво разпределение, но самият комплекс е зле и изглежда призрачен. В гаражите имаше течове. Каква му е цената на този, че не успях да отворя обявата?
280 хиляди

На мен много ми харесва апартаментът като разпределение и размери. Нямам никакви впечатления от комплекса и от района

# 344
  • Мнения: X
Ако е в комплекс - лошо.
Гадно си е да има контрол на достъпа и децата да играят на спокойствие. Още по-гадно е да ти поддържат двора и общите части и като погледнеш през прозореца да виждаш трева и цветя 😀😀😀.

Общи условия

Активация на акаунт