Интериорен и екстериорен дизайн по аматьорски - тема 80

  • 46 141
  • 753
  •   1
Отговори
# 435
  • Мнения: 282
Бих преградила коридора около мястото с бюрото..., и етажерките могат да се използват за съхранение, може и с гардероб или портманто.

# 436
  • София
  • Мнения: 642
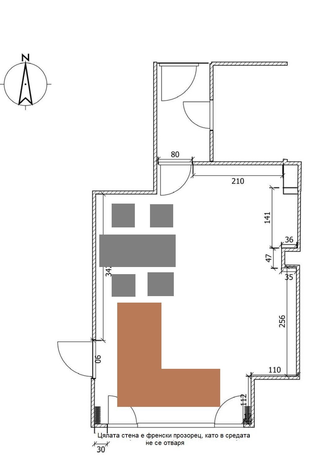
Моля за помощ, всички сме с различни мнения и изобщо не стигаме до никъде. Как бихте разположили всичко в тази холо-кухня? Най-много се разминаваме за тази стена с френски прозорец. Гледката е прекрасна и искаме да и се наслаждаваме максимално.

# 437
  • Мнения: 3 901
Не са дадени всички размери, но стаята е макс 24-5 кв. Ако трябва да има кухня, трапезна маса и диван с телевизор, не виждам как ще остане място за гледка.
Къде са водите и коминът?

# 438
  • Мнения: 6 166
Аз не ги харесвам холо-кухните т.к. така кухнята става една миниатюрна и целия фокус е върху това къде ще е телевизора. Освен това всички слагат в кухнята и пералнята, така че още да се смали мястото за хладилник и шкафове.

Като идея - отгоре в дясно кухнята. Отгоре в ляво трапезария с разтегателна маса.

В средата с гледка към френските прозорци - диван, на който му пада облегалката. От двете страни два фотьойла, които се разтягат на легло / полулегло. Ниска но дълга холна маса в средата и един татами матрак под прозореца. Те се вдигат леко и стават за мързеливо четене. Ако трябва - над форьойлите сложете още кугненски шкафове, но горни, само - не долни.

Ако сложите щори и прожектор на тавана холо-кухнята може да е домашно кино вечерно време.

# 439
  • В заешката дупка
  • Мнения: 5 646
valkyrian, аз бих обмислила варианта без допълнително визуално отделяне на кътчето. Просто се нарежда каквото е нужно за работното място.

Ето няколко примери за работно място в коридор:





# 440
  • Мнения: 1 270
valkyrian, аз бих обмислила варианта без допълнително визуално отделяне на кътчето. Просто се нарежда каквото е нужно за работното място.

Скрит текст:
Ето няколко примери за работно място в коридор:






[/spoiler]

Тези работни места са направени доста добре, обаче поне на вторите две снимки има естествена светлина, която влиза отвън, а на първата, като че ли има пак естествена светлина от позицията, от която е направена снимката, поне така ми изглежда. Лично аз не си представям работно място без естествено осветление, много би ме потиснало. Освен ако не се сложи някакво супер изкуствено. Ама всеки си знае възможностите на помещенията и т.н.

# 441
  • В заешката дупка
  • Мнения: 5 646
Да, нужно е да влиза отнякъде естествена светлина, особено ако ще се застоява човек там дълго, но ако се работи на компютър, примерно, прекаленото осветяване също не и никак добре.

P.S. При поне две от снимките горе ми се струва че има значително допълнително осветяване на снимките, а не че помещенията са наистина чак толкова светли.

# 442
  • Мнения: 5 386
Natt Имаме страхотен разтегателен диван в стаята на детето, но сина ми не желае да дели една стая с друг човек пък било и за една нощ.
Скрит текст:
Имаме допълнително място за щастие, където може и да се преспива с всички нужни удобства. Тествано с приятел, смятам да приложа и за роднини Wink Също си ценя личния комфорт и мина времето дето можех да изтърпя за 1-2 дена някой. Правя същото когато ходя някъде - спя на хотел, виждаме се с приятели за хапване, разходка и т.н. Другата тема не ми се почва, че ... Simple Smile

# 443
  • София
  • Мнения: 1 566

Скрит текст:

Понеже е огромен ще сложим компютърната маса вдясно, до колоната
Но после с какво да я отделя визуално?

Върти ми се нещо такова
Скрит текст:

Valkyrian, това бамбуковото, ако ти се връзва с бюрото и останалия интериор, е много хубаво, но не е ли малко високо? Виждала съм в чуждите икейски сайтове пак бамбуково, но по-ниско, което ми се струва, че би стояло по-добре. Имам предвид, че ако бюрото е до колоната и е преградено с нещо високо, ще създава малко усещане, все едно си в килер...
Етажерките Kallax също са вариант.

# 444
  • Мнения: 437
Благодаря за идеите
Намерих нещо, което мисля да пробвам
https://www.ikea.com/se/sv/p/lungoen-insynsskydd-off-white-inomh … utomhus-80515509/


Доколкото разбирам, височината може да е по избор

Предполагам беше объркващо, че пуснах снимка на празен коридор и оттам дойдоха идеи за обзавеждане
Просто сме след пресен ремонт, сега уикенда ще се обзавежда отново

Гледам къде ли не за идеи, ще видим какво ще се получи в крайна сметка

# 445
  • Мнения: 17 448
Това е пластмаса и прилича на пластмасова щайга

# 446
  • Мнения: 44 476
Намери и друго решение. Подкрепям Титина.

# 447
  • Мнения: 653
Моля за помощ, всички сме с различни мнения и изобщо не стигаме до никъде. Как бихте разположили всичко в тази холо-кухня? Най-много се разминаваме за тази стена с френски прозорец. Гледката е прекрасна и искаме да и се наслаждаваме максимално.
Скрит текст:

Това преходна стая ли е?

Може би една лежанка до френския прозорец:
Скрит текст:

Или два въртящи се фотьойла, които да са насочени или към гледката, или към стаята:
Скрит текст:

Зависи от навиците Ви - аз не бих сложила фотьойли; ще сложа диван-ъгъл без облекалка, ако вратат е балконска:
Скрит текст:

# 448
  • Мнения: 2 632
Това е пластмаса и прилича на пластмасова щайга
Поцинкована стомана, прахово покритие на полиестерна основа
Но точно тези и на мен не ми харесват, поне на снимка.
може би нещо по индивидуална поръчка поръчка примерно тук предлагат : https://www.facebook.com/artreshetki

# 449
  • Мнения: 29 733
Аз бих сложила олекотена контрукция, тип стелажи.Хем да има светлина, хем да е визуално отделено.


Като се наредят джиджавки, контейнери и се запълни, хем ще е отделено, хем няма да е затулено.

Общи условия

Активация на акаунт