Q&A
Обобщени въпроси и отговори от темата *
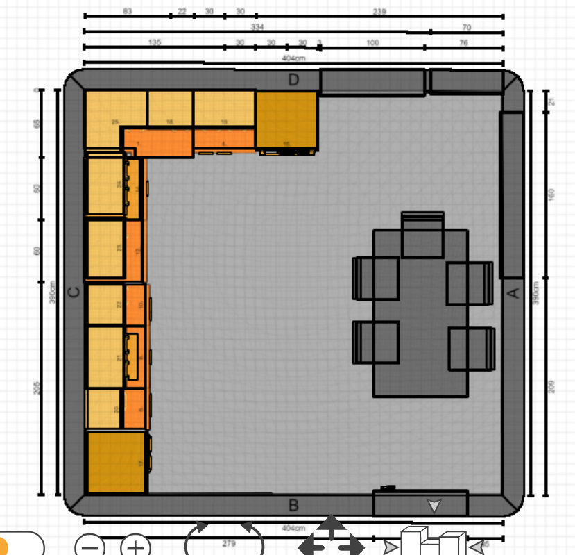
Къде са изводите за вода на тази схема или тепърва ще бъдат направени и няма значение?
Какви са наличните опции за чекмеджета, включително ПВЦ и други видове? Кои механизми бихте препоръчали за тях и какви могат да бъдат приблизителните разходи?
Как мога да прикрия този грозен ръб и какво трябва да сложа на стената между двете врати, за да го предпазя от неволно одраскване от столове при сядане?
* Предложените въпроси и отговори се генерират машинно от автоматизиран езиков модел на база потребителските мнения в темата. Генерираното съдържание може да е непълно, неактуално, подвеждащо или неподходящо. Вашите оценки спомагат за подобряване на модела и неговото усъвършенстване.
-
Къде са изводите за вода на тази схема или тепърва ще бъдат направени и няма значение?
-
Какви са наличните опции за чекмеджета, включително ПВЦ и други видове? Кои механизми бихте препоръчали за тях и какви могат да бъдат приблизителните разходи?
-
Как мога да прикрия този грозен ръб и какво трябва да сложа на стената между двете врати, за да го предпазя от неволно одраскване от столове при сядане?
-
Как да свържа плочките с паркета без праг?
-
Как са монтирани съдомиялните и как да реша проблема с разстоянието до плота?





