Q&A
Обобщени въпроси и отговори от темата *
Как мога да убедя съпруга си да инсталираме еднакви дръжки на мебелите?
Как да избера удобен стол за детето си?
Какво представлява стилът Прованс?
* Предложените въпроси и отговори се генерират машинно от автоматизиран езиков модел на база потребителските мнения в темата. Генерираното съдържание може да е непълно, неактуално, подвеждащо или неподходящо. Вашите оценки спомагат за подобряване на модела и неговото усъвършенстване.
-
Как мога да убедя съпруга си да инсталираме еднакви дръжки на мебелите?
-
Как да избера удобен стол за детето си?
-
Какво представлява стилът Прованс?
-
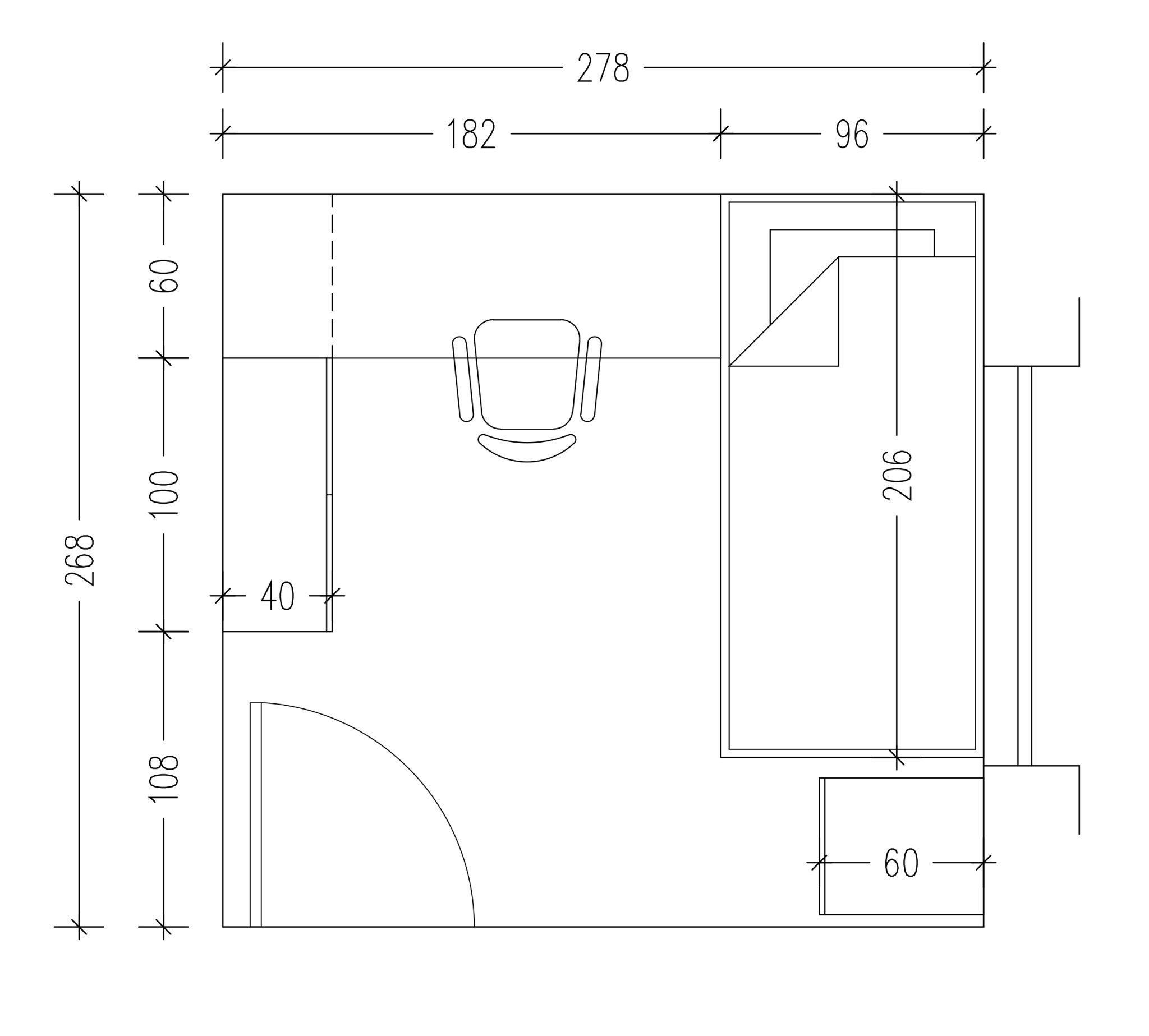
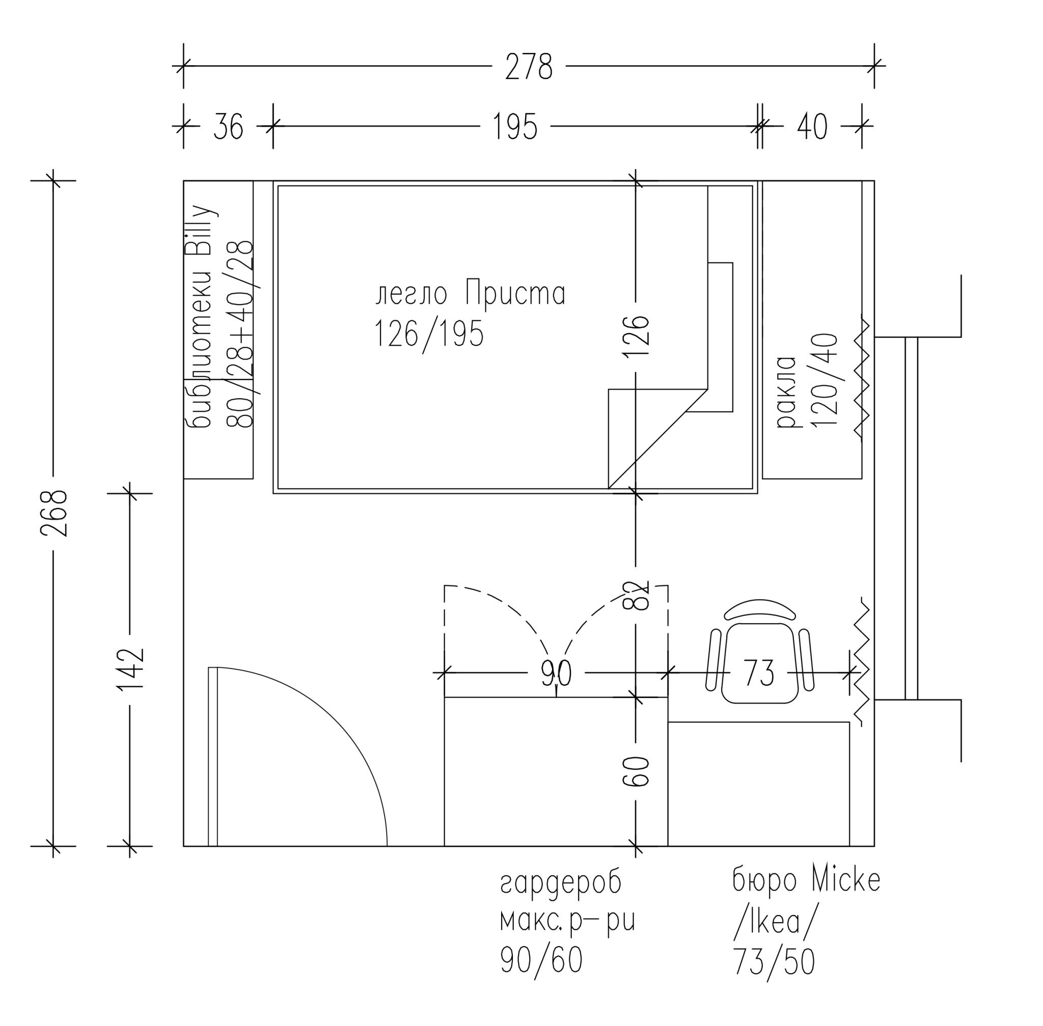
Как да позиционирам детското бюро до прозореца?
-
Защо е важно да изберете подходящ ергономичен стол и маса за деца?



, но все пак:
