Банята - тема 40

  • 47 076
  • 749
  •   1
Отговори
# 390
  • Sofia
  • Мнения: 2 423
Душ питата е на 43см от стената, а тя самата е 31см, което дава 86см ефективна широчина, така че е приблизително все тая на коя страна ще се завъртиш. Принципно можеш да си монтираш питата и на дългата страна, ако имаш проблем (примерно си много масивен човек).
Плюса на паравана е, че не пръска навсякъде и задържа парата. Т.е. влажността в банята остава много ниска, особено ако се къпеш дълго. През лятото е още по-важно, в жегите, да няма висока влажност.

# 391
  • София
  • Мнения: 3 243
Един единствен път съм си причинявала душ кабина и не бих повторила. Чистенето е твърде времеемко. Стъклен/прозрачен параван също, по същата причина.

Ако мястото позволява, бих оформила душово пространство с мини стенички, облечени с плочки. Ако не, по-добре без нищо. Банята съхне за половин час, не е драма.

Ето какво имам предвид, как правим всички бани напоследък.

Просто частта за душа отделяме с гипс картон, оформяйки нещо като кабина. Чисти се бързо и лесно, изглежда добре.

Линейният сифон пък събира идеално, защото е точно на границата с останалата част от банята.

Тук конкретно има и прозорче, но винаги слагаме и вентилатор със сензор за влага, който се включва автоматично.

# 392
  • Мнения: 53 201
Близо 4 години съм със стъклена душ кабина (три стъкла и врата) и изобщо не съм се пречистила. Два пъти седмично като чистя къщата тръквам с препарат за прозорци и хартия. И доста по-нарядко мия по-качествено долната една педя, ама то важи и за стените. И стъклата ми са си идеално прозрачни - няма капки, няма облаци. А да ми е мокра тоалетната чиния и цялата баня мразя.

# 393
  • Мнения: 4 379
Ами то и двете се цапат аналогично, просто на едното ще му личи по-малко, следователно по него ще се събира някаква гняс. Бррррр.... Предпочитам да мога да видя къде и какво се е замърсило своевременно.

# 394
  • Мнения: 77 171
За това най-добпе е тоалетна и баня да са отделни помещения. Така не се мокри тоал.чиния.

# 395
  • София
  • Мнения: 3 243
Никакъв шанс да чистя 4 пъти дневно стъкло. Не съм попадала на такова, по което не остават следи, колкото и да ми го рекламират.

По-голяма гняс от тази, която се събира по улеите и уплътненията на душкабините няма. И качествено изчистване няма.

С плочките е най-лесно. Малко Доместос и готово. Всеки си преценЯ за кое колко време да отделя. 😁

# 396
  • София
  • Мнения: 1 689
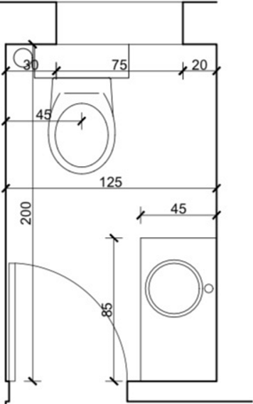
тази баня от по-горе направо ме зариби да превърна тоалтната в баня с подобно разположение, според вас възможно ли е за помещешние, което 125/200 см, правилен правоъгълник (май е малко малко...).
В момента плана ми беше за тоалетна с хигиенно душче срещу вратата и мивка

Скрит текст:

# 397
  • Мнения: 53 201
Никакъв шанс да чистя 4 пъти дневно стъкло. Не съм попадала на такова, по което не остават следи, колкото и да ми го рекламират.

Чистя два пъти седмично, написах го, и нямам петна. Ето и една снимка, сега направена, а стъклата са миоти в понеделник:

Скрит текст:
изтрито

По-голяма гняс от тази, която се събира по улеите и уплътненията на душкабините няма. И качествено изчистване няма.
Нямам улеи, а уплътненията са такива, че не задържат вода. Кабината е сглобена от прави стъкла.

С плочките е най-лесно. Малко Доместос и готово. Всеки си преценЯ за кое колко време да отделя. 😁
Какво ти пречи Доместос и по стъклата???

Последна редакция: пт, 22 апр 2022, 15:20 от Черна станция

# 398
  • Мнения: 3 874
според вас възможно ли е за помещешние, което 125/200 см, правилен правоъгълник (май е малко малко...).
Аз имам подобна баня 120/215, но разположението е по друг начин. В дъното е душа, по цялата ширина, а тоалетната и мивката са от двете страни на вратата. Душа и wc-то са ок, мивката е много малка и неудобна, но тази баня е допълнителна и не я ползваме.
С вашето разположение, не виждам как ще стане.🤔

# 399
  • Мнения: 8 252
тази баня от по-горе направо ме зариби да превърна тоалтната в баня с подобно разположение, според вас възможно ли е за помещешние, което 125/200 см, правилен правоъгълник (май е малко малко...).
В момента плана ми беше за тоалетна с хигиенно душче срещу вратата и мивка

Скрит текст:
Минимумът е 210 см за такава конфигурация без преграда, а само със стъкло, защото за картон или итонг с плочка трябват още поне 7 см. В противен случай трябва да сложите или мивка 45-50 см макс, структура 70 см и остава за кабина ширина 70 см, което е малко, освен ако не е резервна баня или не сложите параван хармоника, който да седи сгънат и да разширите кабината към структурата.

# 400
  • Мнения: 5 073
Момичета, лира за баня много ли ток гори?

# 401
  • Мнения: 53 201
Момичета, лира за баня много ли ток гори?

Виж с каква мощност е и ще разбереш. Иначе аз имам лира, но никога не я пускам, та не ми харчи нищо (макар да е към ТЕЦ).  Едва ли ще грее по цял ден и при теб, даже и да я пускаш.

# 402
  • Мнения: 5 593
Стигнахме до гледане на сифони. Споделете от кои сте доволни.
Разглеждах и скъпите линейни сифони на Geberit и Viega. Имам някакви подозрения, че това са твърде сложни инсталации като им гледах клипчетата за монтаж в You Tube. Да не говорим, че майсторите ни може да нямат кой знае какъв опит с монтажа им и 1. малко ме е страх дали няма да оплескат нещата, 2. като нищо ще ни поискат сума отгоре заради сложния монтаж. Точно както струва много по-скъпо да ти сложат структура за вграждане вместо моноблок.Тогава разбрах защо някои производители се хвалят с "опростен монтаж".
Замислям се за този на Rea или този също на Rea
Искам да не са с хептен голяма монтажна дълбочина. Все пак няма да дълбаем в плочата я.
Моля споделете от кои линейни сифони сте доволни, лесно ли ги почиствате и т.н.

# 403
  • Мнения: 8 252
Slim сифонът няма клапа, само задържа вода и при пресъхване има опасност да мирише. Имаме купени такива, но не мога да споделя реален опит, защото още не се ползва сградата и съответно канализацията.
Стандартният сифон е описан като такъв, който не пропуска миризми и при пресъхване (ако не ползвате банята).
Направи ми впечатление, че дават различен дебит на двата сифона, което може да е грешка, но може и да не е.
Това са двете неща, които трябва да се имат предвид при избора на сифон.
И двата са от стомана, но на слим модела дават 5 г гаранция, при 10 на стандартния. Това толкова не би ме притеснило честно, по-скоро гледайте горните два показателя.

П.П. Гледам сега при нас точно тези сифони как са описани.
1. Тези хич не правят разлика между мин и сек.! И на двата сифона дебитът е 36 л/мин или 60 л/сек. (има грешка в БГ сайта май)!
2. И на двата сифона при нас дават 10 г. гаранция от производителя (предполагам пак е грешка на сайта в БГ!).

Бих взела този, който има и сух затвор (демек широкият, ако има опасност от навлизане на миризми).

Има и доставка до България с плащане през PayPal и код за отстъпка REA5 и за двата сифона от линковете тук https://bania-rea.bg/lineen-sifon-rea-neo-pro-2-in1-black.html и цената им става като тази, на която ги продават при нас.

Последна редакция: пн, 25 апр 2022, 10:47 от drago_2008

# 404
  • Варна
  • Мнения: 4 444
Ние се спряхме на слим сифона на Viega, Advantix Vario. В мократа част на банята е, с плочи 60х120 сме, лесно се чисти. Визията за мен беше много важна поради мини помещението. Няма друг по-дискретен. Миризми няма.

Общи условия

Активация на акаунт