Строеж - къде, как, колко? Тема за взаимопомощ 43

  • 39 384
  • 767
  •   1
Отговори
# 615
  • Мнения: 7 416
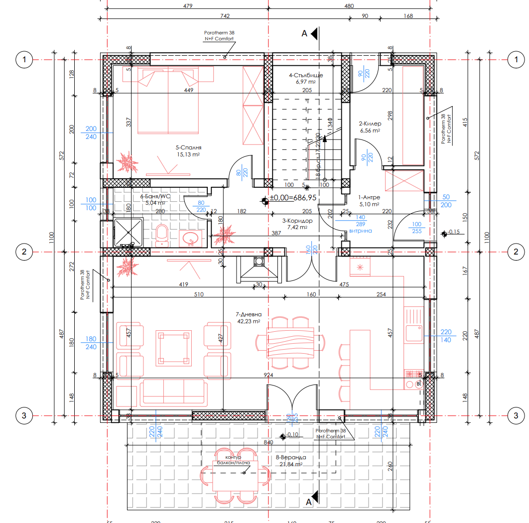
Проектирани са от архитект. Просто са взаимствани части от друг подобен проект. Разпределението при нас е тривиално. Къща(вила) на 1 етаж. Холо-кухня, три спални, две бани, коридор и входно антре. Входната врата е разположена странично. Отпред пред хола има покрита и затворена с безпрофилно остъкляване веранда, на която има барбекю, голяма маса за хранене - тип баварска с големи дървени пейки. Отделно имаме допълващо застрояване на 1 етаж, представляващо студио за гости (холо-кухня и баня) и мазе за сервизно/техниечско помещение. Парцелът е малък, тесен и дълъг и по тази причина къщата е разположена по дължина. Допълнителна част от верандата от към барбекюто сега е открита. Там ще изградим външна чешма с кухненски плот от камък и ще я покрием с дървен навес. Изградили сме и площадка за джакузи. Навсякъде, където е необходимо предварително са изведени вода, канал, ток, осветление, включително за входната гаражна врата.

# 616
  • Мнения: 1 809
Бихте ли споделили разпределенията си. Интересно е какъв е крайния резултат, когато не са проектирани от архитект.

За съжаление не мога да намеря картинките, които ние пратихме на проектанта относно това как искаме да е разпределена къщата, но те доста се доближават до крайния вариант:
Скрит текст:


"пералното" сме го махнали.

Изискванията към проектанта ни бяха да проектира пасивна къща без да сертифицираме. За отопление изикванията бяха да има подово и рекуператор.  На тавана искахме добра изолация.
Това, което ни беше предложено: Стндартен свеътл отвор. По предложение на конструктора увеличихме светлия отвор, защото той съобрази, че нивото на тавана трябва да падне заради тръбите на рекуператора. Той увеличи височината на трегера, заради тръбите на рекуператора.
Проектанта беше дал размера на стълбите на база готов под. Въобще не беше взел под внимание, че има подово!?!?!? Спроед него бай Иван майсторът, трябвало да прецени, че тези размери са от готов под.
Аз просто си представих, как ако аз дам едно такова задание на хората с кото работя, какво ще се случи... Ами крайния резултат изобщо няма да е добър, защото не съм го описала добре.   А аз работя с доста интелигентни и съобразителни хора.

В основата нито хидро изолация беше проектирана, нито топло изолация. До колкото разбрах не са задължителни елементи, но и никой не ни попита дали бихме искали такова нещо...

Тавана също беше стандартно проектиран, въпреки нашите изисквания да има много добра изолация.

По време на строежа се наложи да преработваме проекта.

# 617
  • София
  • Мнения: 2 414
nellytan, много хубаво разпределение и къща!

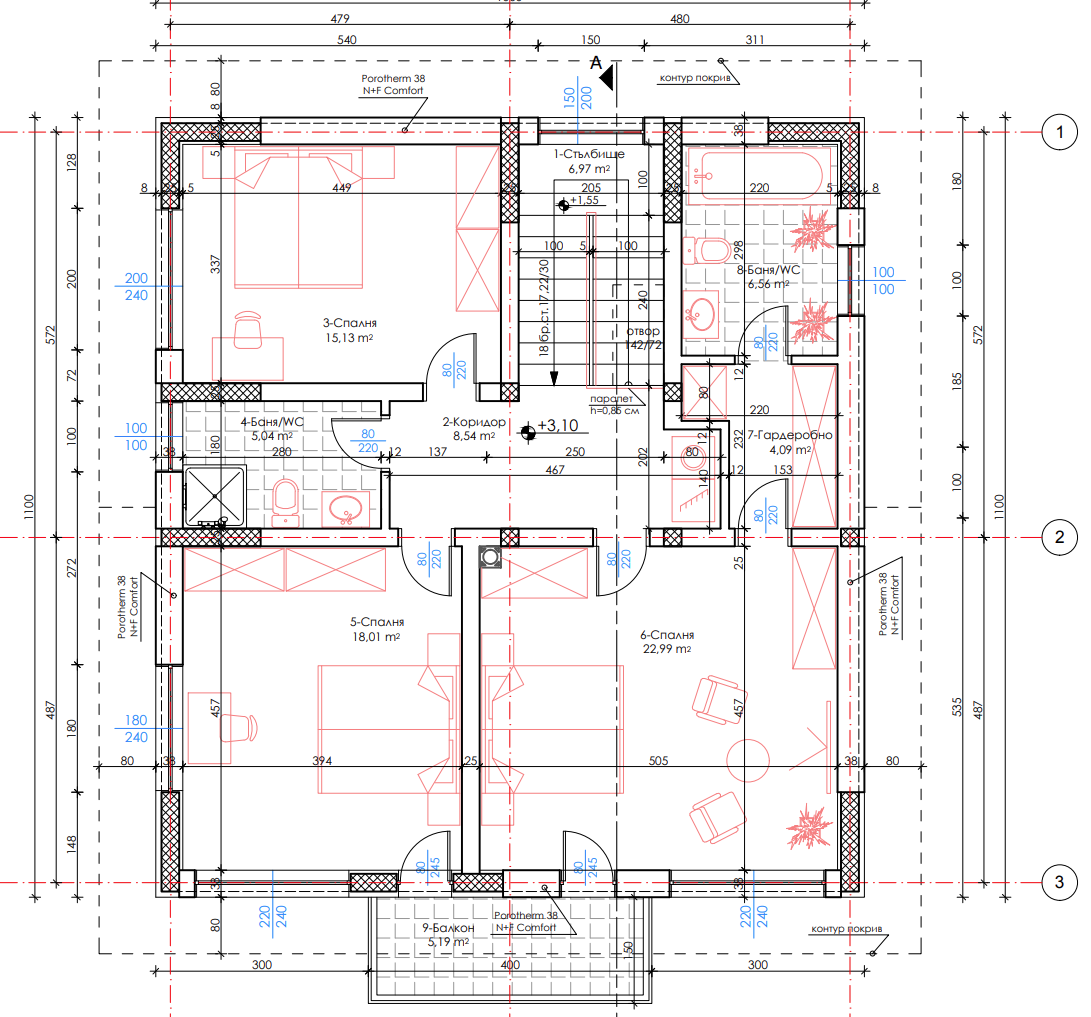
Аз съм показвала няколко пъти. Първоначално обяснихме на архитектката, че искаме на тези 100 м2 да има голяма дневна част, две спални, две бани и сервизно. Това, което предложи първоначално, беше двуетажна къща с усвоено подпоктивно, но ние категорично не искахме да се катерим Simple Smile След това едната баня беше сложена вътрешно, а в чупката беше обособена ниша, в която да се вгради гардероб. Поискахме и двете бани да са външни, т.е с прозорец и още на вторият работен чертеж бяхме готови с разпределението Simple Smile

Скрит текст:



До тук сме:
Скрит текст:


Последна редакция: пн, 13 фев 2023, 13:48 от sofyia

# 618
  • Мнения: 238
Супер, страхотни проекти са се получили.

# 619
  • Мнения: 632
Здравейте,
Какво е наблюдението ви относно цената за редене на ламинат. Колко на кв.м излиза?

# 620
  • София
  • Мнения: 646
Проектирани са от архитект. Просто са взаимствани части от друг подобен проект. Разпределението при нас е тривиално. Къща(вила) на 1 етаж. Холо-кухня, три спални, две бани, коридор и входно антре. Входната врата е разположена странично. Отпред пред хола има покрита и затворена с безпрофилно остъкляване веранда, на която има барбекю, голяма маса за хранене - тип баварска с големи дървени пейки. Отделно имаме допълващо застрояване на 1 етаж, представляващо студио за гости (холо-кухня и баня) и мазе за сервизно/техниечско помещение. Парцелът е малък, тесен и дълъг и по тази причина къщата е разположена по дължина. Допълнителна част от верандата от към барбекюто сега е открита. Там ще изградим външна чешма с кухненски плот от камък и ще я покрием с дървен навес. Изградили сме и площадка за джакузи. Навсякъде, където е необходимо предварително са изведени вода, канал, ток, осветление, включително за входната гаражна врата.

Почти със същото разпределение сме,като изключим разположението на входната врата/при нас отпред/ и едно котелно помещение от 8 квадрата,част от къщата,разположено успоредно на верандата пред холо/кухнята.
Нашето място позволява и по-разгъната сграда,но решихме,че това ще ни е достатъчно за двама възрастни и  малко дете.

# 621
  • Мнения: 366
Здравейте,
Какво е наблюдението ви относно цената за редене на ламинат. Колко на кв.м излиза?
Общо взето е на договорка. В магазин Берг ни предложиха 5.50 лв на кв.м., оттам взехме и паркета . В крайна сметка ние сами си сложихме подложката и платихме 4лв на местен майстор (на който и преди това сме ползвали услугите, та ни направи остъпка де Simple Smile.

# 622
  • София
  • Мнения: 46 974
Ние сами си го слагаме, нямам идея...

# 623
  • Пловдив
  • Мнения: 3 270
Сигурно ще има и значение какъв е ламината ,защото 12 милиметровия ,определено се полага по-трудно .

 Вече не мога да се сетя дали преди 2 или 3 месеца смених филтъра на рекуператора ,но вчера отново изписа грешка с входящия въздух .Въпреки ,че преди 2 седмици прахосмучих доста дълго филтрите му ,се оказа ,че този на входящия въздух ,така се е задръстил с чернилка (от пушеците на  котлите),че мощността паднала от 120 на 70м3 .Трябваше да направя клип ,що черна вода изтече от него ,докато го миех .Супер възмутена съм ,от цялото отношение на хората  към опазване на въздуха ,дори не искам да кажа природата .Още повече ,че визирам съседи ,които не са зле финансово а горят и въглища и отработени масла  Cry

Последна редакция: пн, 13 фев 2023, 20:34 от nelina_london

# 624
  • Мнения: 1 809
Когато детето учеше немски, доста често имаха уроци за опазване на околната среда. В нашата образователна система почти не съм срещала такива уроци.

# 625
  • Мнения: 1 934
Nelina_london, сигурно ще е за пореден път, но може ли да ми кажеш каква марка ви е каналния климатик? Как е решено в отделните стаи, в баните? За всяка стая отделен климатик ли е? Извинявам се за дилетантските въпроси, но ме зачовърка след твоите отзиви дали да не се насочим към такъв вид отопление.

# 626
  • Мнения: 1
Здравейте, обмислям тази или другата година да започна строителство на къща около София. Имам закупен парцел в регулация. Някой строил ли е така наречените пасивни или енергоефективни къщи и може ли да сподели ориентировъчна цена на кв.м? Насочил съм се към проект на двуетажна къща около 190кв.м + плосък използваем покрив. Ще се радвам да споделите опит, добри архитекти и изпълнители за такъв тип проект.

# 627
  • Пловдив
  • Мнения: 3 270
Kolsches ,марката на климатика няма голямо значение .В случая, нашият е Дайкин .Всъщност сме с два -по един на етаж ,но този на първи етаж е достатъчен да стопли цялата къщата ,въпреки че подава топлина само в хола (с 3 решетки ) и в спалнята на първи етаж .
В.Баните няма отопление ,но тук идва ролята на изолацията и рекуперацията .
Изолацията ,защото затваря всичко ,все едно е един обем ,а рекуперацията защото подпомага топлообмена -като изсмуквайки от баните ,придвижва топлият въздух от другите стаи в бани и коридори .В резултат ,разликата между хол ,спални и бани е макс 1° .
 Малко е трудно за вярване как може навсякъде да е топло ,със сигурност и слънцето помага много ,но и без него ,просто климатикът ще работи нон стоп .
В предходните студени дни ,климатикът е работил само от полунощ до 9.30 сутринта . В 17 часа ,когато се прибирам от работа , вкъщи бе 25° и постепенно  t пада до 23,5° до около полунощ ,въпреки че навън температурите са минусови още от 8 вечерта .
Иначе ,  каналният климатик ,ще си действа и в малкоизолирани къщи ,но с по-големи мощности .Плюсът е ,че в големи пространства може да се сложат няколко решетки ,могат да са на удобно място ,където няма да създават дискомфорт духайки ,няма да чувате размразяването и основният шум ще бъде изнесен в коридора /спомагателното помещение  (където се постави климатика). Минусът е ,че за да имате индивидуално регулиране на t по стаи ,трябва да поставите ел.клапи .
По проект ,в  случай  на по-малко изолация ,в баните слагат инфрачервени отоплители .

Снимка на решетка в спалня



Телата отвън ,в чупка зад гаража



За съжаление нямам хубави снимки на тръбния  път вътре .

Последна редакция: пн, 13 фев 2023, 23:07 от nelina_london

# 628
  • Мнения: 1 934
Сърдечни благодарности. Нелина! Замисляме къщата да е на един етаж, хол+кухня+трапезария, 3 спални, 2 бани, техническо помещение и склад/гардероб. (Много подобно на други съфорумки в темата Simple Smile, очертава се класика Simple Smile)
На изолацията със сигурност ще наблегнем, но рекуперацията ми се струва много сложно начинание в чисто технически аспект. Правилно ли предполагам, че ТП с подово отопление излиза във финансово отношение много повече от канален климатик +рекуператор?

# 629
  • Пловдив
  • Мнения: 3 270
Рекуперацията е абсолютно еднаква като инсталация с каналния климатик .Едно тяло от което тръгват тръби навсякъде .Само ,че да се прекарат тези тръби е по-лесно от това да се изгради ВИК инсталация .
Винаги съм отворена за посещения и добиване на представа .
 Цената зависи от това каква мощност климатик ви трябва .При всички случаи за тази квадратура ще е около 5-6 хил.лв  ,а рекуператорът може да е на стойност от 3 до 6 хил.лв .Всички останали консумативи за  инсталацията на 2те системи не би трябвало да надхвърлят 4-5 хил.лв по новите цени .Е,ако тръбите са някакви брандирани  ПВЦ са по-скъпи .Мисля , че всяко нормално семейство може да се справи само с инсталацията ,стига да има проект .Просто няма какво да се обърка -по тръбите минава въздух ,не вода .
На етап проект ,може всичко да се заложи над помещенията в подпокривното пространство  и да се предвидят само отворите за решетките на таваните на помещенията .

Не мога да сравня подово с ТП и  вентилация + рекуперация .Първото е по-комфортно ,според повечето хора , второто като комбинация дава отопление +охлаждане +вентилация .
Рекуперацията за мен е като съдомиялна -можеш без нея ,но веднъж използвала я ,никога няма да искаш повече да отваряш прозорците зимата .В моят случай и да дишам пушилка ,ако проветрението е по класическия начин.

Общи условия

Активация на акаунт